;

ЩРН(В)-П серии LIGHT производства IEK

Боксы ЩРН(В)-П серии LIGHT
Пластиковые корпуса ЩРН(В)-П IP41 серии LIGHT используются в осветительных сетях для установки модульных устройств: автоматических выключателей, устройств защитного отключения, дифференциальных автоматических выключателей, таймеров, устройств управления освещением и т.д.
Надежная, современная конструкция и прочный пластик, удобные крепежные приспособления гарантируют изделиям долгий срок службы и безопасность эксплуатации.
 
Ударопрочный, самозатухающий АБС-пластик.
Вертикальное расположение корпуса и крышки.
Простой и быстрый монтаж - отверстия для крепления корпуса.
Удобный монтаж - предварительно выштампованные вводы для введения кабелей со всех сторон.
Наличие специальной планки для крепления нулевой шины.
Маркировочная лента входит в комплект изделия.
Универсальные винты.
Надежная DIN-рейка.
Технические характеристики
 
ЩРВ-П-12
ЩРВ-П-18
ЩРВ-П-24
ЩРВ-П-36
ЩРВ-П-4
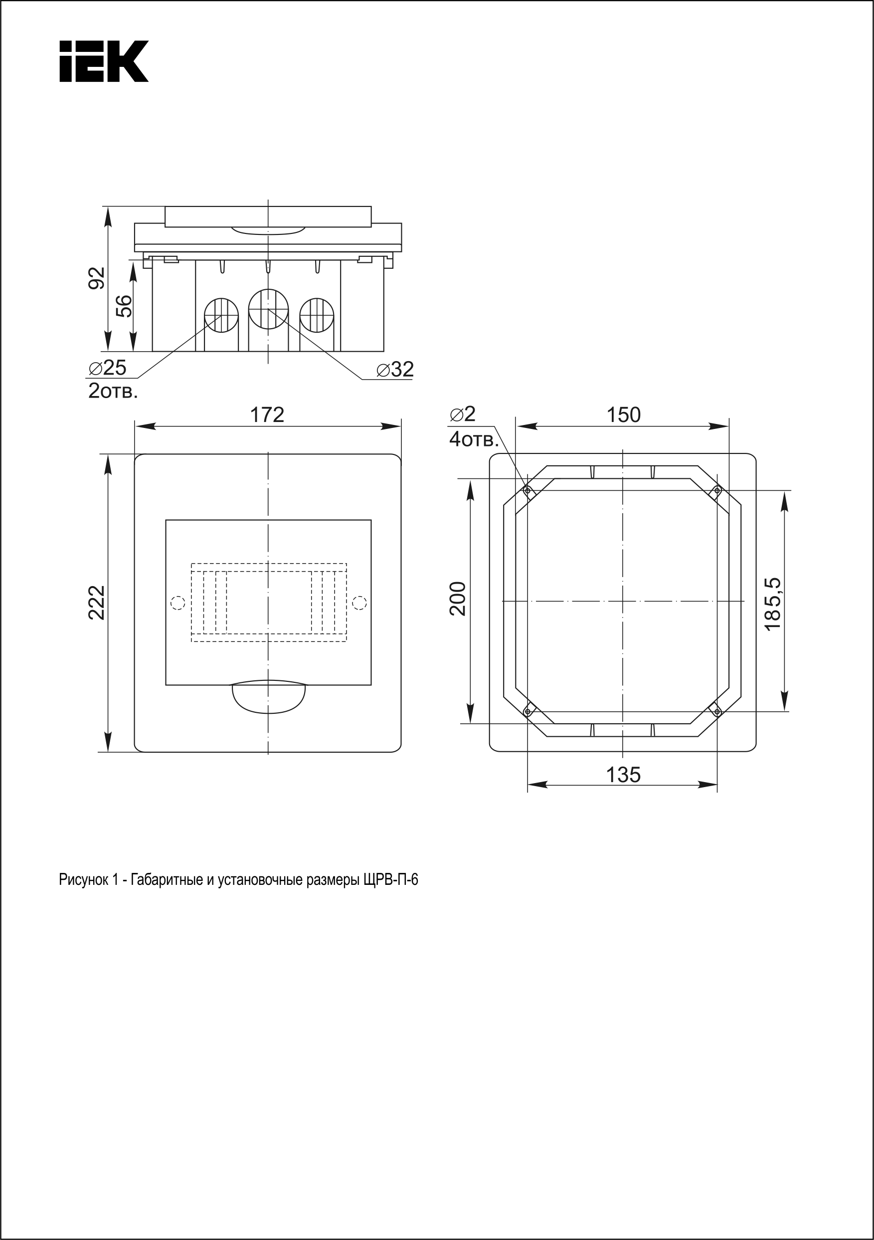
ЩРВ-П-6
ЩРВ-П-8
Тип монтажа:
Встраиваемый
Кол-во рядов:
1
1
2
3
1
1
1
Ширина по количеству модульных расстояний:
12
18
24
36
4
6
8
Тип крышки:
Закрытого типа (закрывающаяся)
Материал корпуса:
Пластик
Высота:
222.0 мм
252.0 мм
345.0 мм
503.0 мм
222.0 мм
222.0 мм
222.0 мм
Ширина:
280.0 мм
398.0 мм
300.0 мм
342.0 мм
136.0 мм
172.0 мм
208.0 мм
Глубина:
87.0 мм
87.0 мм
87.0 мм
88.0 мм
87.0 мм
87.0 мм
87.0 мм
Цвет:
Белый
Номер цвета RAL:
9016
Степень защиты - IP:
IP41
Климатическое исполнение:
УХЛ3
Номин раб напряжение:
230/400 В
230/400 В
230/400 В
230/400 В
230/400 В
230/400 В
230/400 В
Номин электр прочность изоляции:
660 В
660 В
660 В
660 В
660 В
660 В
660 В
Класс электробезопасности:
II
Вес:
0.62 кг
0.96 кг
1.11 кг
1.85 кг
0.36 кг
0.41 кг
0.49 кг
Температура эксплуатации:
-20...+80 °C
-20...+80 °C
-20...+80 °C
-20...+80 °C
-20...+80 °C
-20...+80 °C
-20...+80 °C
Статическая нагрузка:
13.5 Н
20.0 Н
27.0 Н
40.0 Н
4.5 Н
7.0 Н
8.0 Н
 
 
 
ЩРН-П-12
ЩРН-П-18
ЩРН-П-24
ЩРН-П-36
ЩРН-П-4
ЩРН-П-6
ЩРН-П-8
Тип монтажа:
Навесной
Кол-во рядов:
1
1
2
3
1
1
1
Ширина по количеству модульных расстояний:
12
18
24
36
4
6
8
Тип крышки:
Закрытого типа (закрывающаяся)
Материал корпуса:
Пластик
Высота:
200.0 мм
220.0 мм
327.0 мм
473.0 мм
200.0 мм
200.0 мм
200.0 мм
Ширина:
255.0 мм
362.0 мм
270.0 мм
307.0 мм
112.0 мм
150.0 мм
184.0 мм
Глубина:
97.0 мм
97.0 мм
99.0 мм
99.0 мм
93.0 мм
97.0 мм
97.0 мм
Цвет:
Белый
Номер цвета RAL:
9016
Степень защиты - IP:
IP41
Климатическое исполнение:
УХЛ3
Номин раб напряжение:
230/400 В
230/400 В
230/400 В
230/400 В
230/400 В
230/400 В
230/400 В
Номин электр прочность изоляции:
660 В
660 В
660 В
660 В
660 В
660 В
660 В
Класс электробезопасности:
II
Вес:
0.65 кг
0.93 кг
1.17 кг
1.92 кг
0.32 кг
0.43 кг
0.49 кг
Температура эксплуатации:
-20...+80 °C
-20...+80 °C
-20...+80 °C
-20...+80 °C
-20...+80 °C
-20...+80 °C
-20...+80 °C
Статическая нагрузка:
13.5 Н
20.0 Н
27.0 Н
40.0 Н
4.5 Н
7.0 Н
8.0 Н
 
Код Артикул Наименование Заказать
387875 MKP12-N-04-40-20-L Бокс ЩРН-П-4 модуля навесной пластик IP41 LIGHT IEK Заказать
387876 MKP12-N-06-40-20-L Бокс ЩРН-П-6 модулей навесной пластик IP41 LIGHT IEK Заказать
387877 MKP12-N-08-40-20-L Бокс ЩРН-П-8 модулей навесной пластик IP41 LIGHT IEK Заказать
387878 MKP12-N-12-40-10-L Бокс ЩРН-П-12 модулей навесной пластик IP41 LIGHT IEK Заказать
387879 MKP12-N-18-40-10-L Бокс ЩРН-П-18 модулей навесной пластик IP41 LIGHT IEK Заказать
387880 MKP12-N-24-40-10-L Бокс ЩРН-П-24 модуля навесной пластик IP41 LIGHT IEK Заказать
387881 MKP12-N-36-40-05-L Бокс ЩРН-П-36 модулей навесной пластик IP41 LIGHT IEK Заказать
387882 MKP12-V-04-40-20-L Бокс ЩРВ-П-4 модуля встраиваемый пластик IP41 LIGHT IEK Заказать
387883 MKP12-V-06-40-20-L Бокс ЩРВ-П-6 модулей встраиваемый пластик IP41 LIGHT IEK Заказать
387884 MKP12-V-08-40-20-L Бокс ЩРВ-П-8 модулей встраиваемый пластик IP41 LIGHT IEK Заказать
387885 MKP12-V-12-40-10-L Бокс ЩРВ-П-12 модулей встраиваемый пластик IP41 LIGHT IEK Заказать
387886 MKP12-V-18-40-10-L Бокс ЩРВ-П-18 модулей встраиваемый пластик IP41 LIGHT IEK Заказать
387887 MKP12-V-24-40-10-L Бокс ЩРВ-П-24 модуля встраиваемый пластик IP41 LIGHT IEK Заказать
387888 MKP12-V-36-40-05-L Бокс ЩРВ-П-36 модулей встраиваемый пластик IP41 LIGHT IEK Заказать
;